Ampliación A37


 ANTEPROYECTO   PROYECTO   EJECUCIÓN   FINALIZADO 
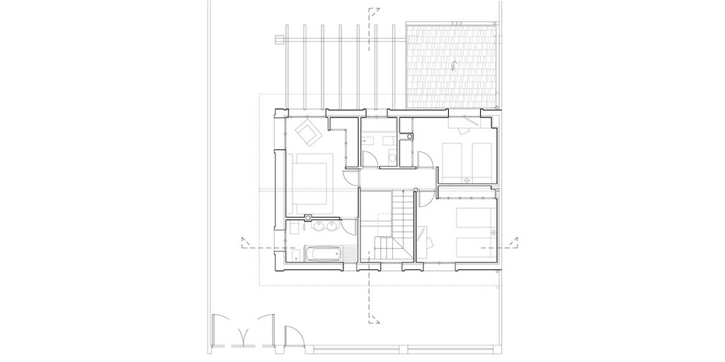
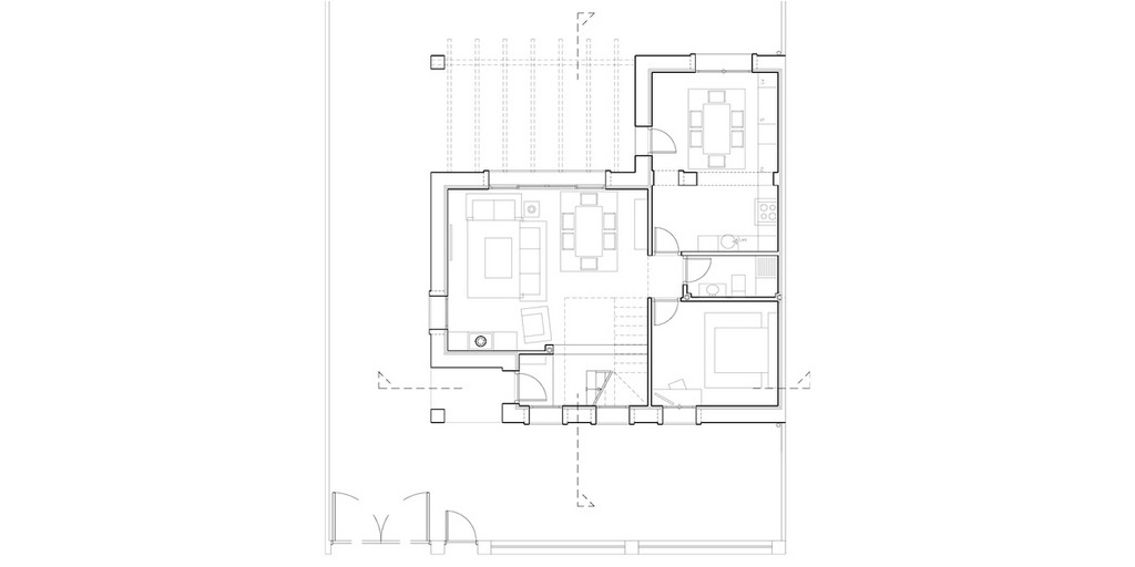
Proyecto: Vivienda Unifamiliar Pareada
Dirección: Colmenar Viejo, Madrid
Cliente: Privado
Superficie construida: 160 m2
Arquitectos: Gonzalo Aragón Olalla
Juan Farina Cuevas
Francisco Gordo Martín
 
 1 | 2 | 3 | 4 | 5 | 6 | 7 | 8 | 9 
<