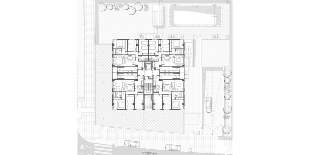
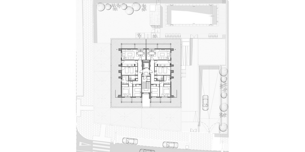
Edificio de 18 viviendas, garage, trastero y piscina


 ANTEPROYECTO   PROYECTO   EJECUCIÓN   FINALIZADO 
Proyecto: Edificion residencial de 18 viviendas
Dirección: Fuenlabrada, Madrid
Cliente: Privado
Superficie construida: 2800 m2
Arquitectos: Gonzalo Aragón Olalla
Juan Farina Cuevas
Francisco Gordo Martín
 
 1 | 2 | 3 | 4 | 5 | 6 | 7 | 8 | 9 | 10 
<