Nave los Olivos
ANTEPROYECTO
PROYECTO
EJECUCIÓN
FINALIZADO
Proyecto:
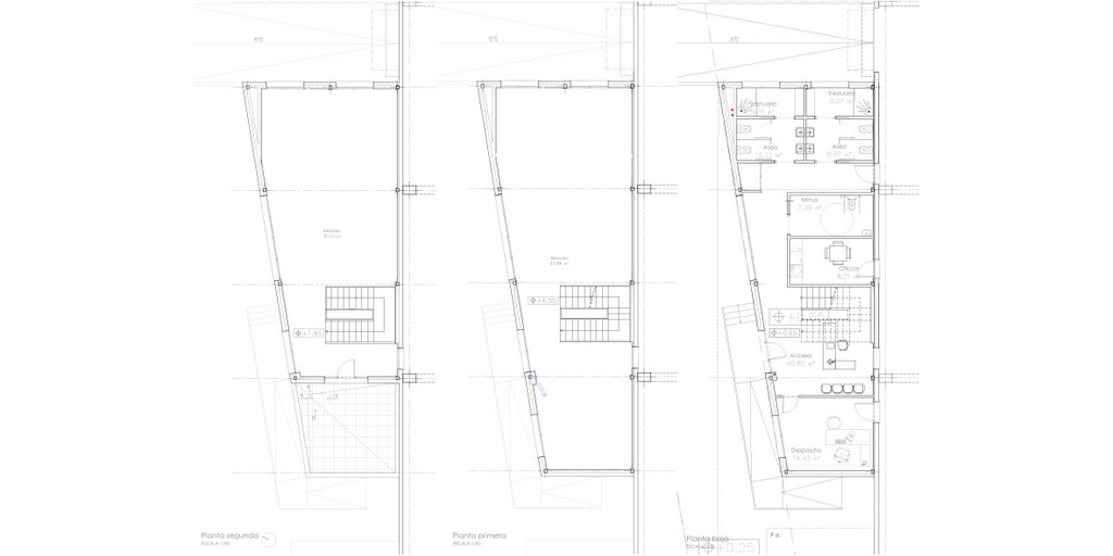
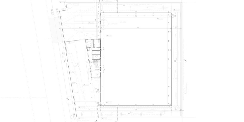
Nave industrial Los Olivos
Dirección:
Calle de la Formación . Getafe
Cliente:
INICIATIVAS Y DESARROLLOS VALDINIEBLA SL
Superficie construida:
1800 m²
Arquitectos:
Gonzalo Aragón Olalla
Francisco Gordo Martín
AMBITEC
1 |
2
|
3
|
4
|
5
1
| 2 |
3
|
4
|
5
1
|
2
| 3 |
4
|
5
1
|
2
|
3
| 4 |
5
1
|
2
|
3
|
4
| 5
<