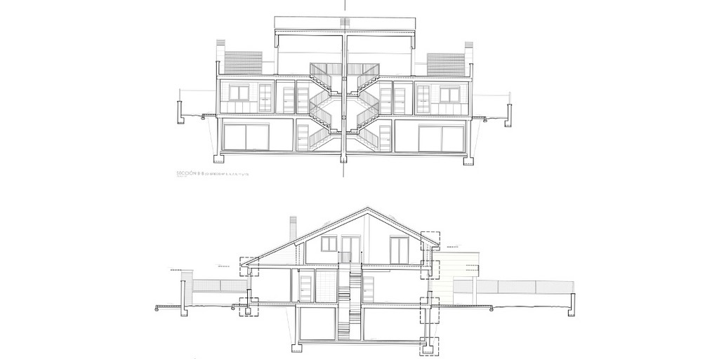
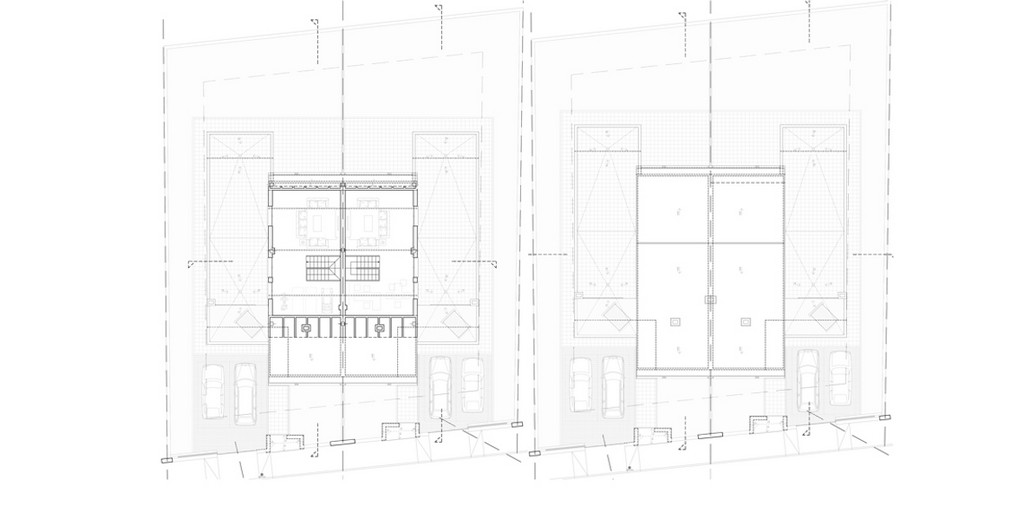
Residencial Greco
ANTEPROYECTO
PROYECTO
EJECUCIÓN
FINALIZADO
Proyecto:
6 viviendas unifamiliares en Griñón
Dirección:
Calle Greco. Griñón
Cliente:
YPS SOCIEDAD URBANIZADORA SA
Superficie construida:
1836 m²
Arquitectos:
Gonzalo Aragón Olalla
Francisco Gordo Martín
AMBITEC
1 |
2
|
3
|
4
|
5
|
6
1
| 2 |
3
|
4
|
5
|
6
1
|
2
| 3 |
4
|
5
|
6
1
|
2
|
3
| 4 |
5
|
6
1
|
2
|
3
|
4
| 5 |
6
1
|
2
|
3
|
4
|
5
| 6
<