Vivienda AR2
ANTEPROYECTO
PROYECTO
EJECUCIÓN
FINALIZADO
Proyecto:
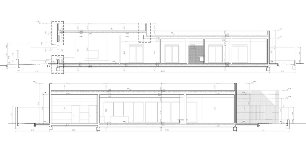
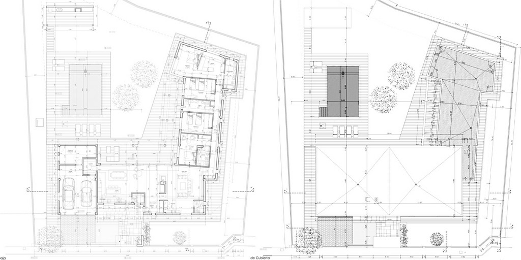
Vivienda unifamiliar en Guadalajara
Dirección:
Villanueva de la Torre. Guadalajara
Cliente:
Particular
Superficie construida:
218 m²
Arquitectos:
Gonzalo Aragón Olalla
Francisco Gordo Martín
1 |
2
|
3
|
4
1
| 2 |
3
|
4
1
|
2
| 3 |
4
1
|
2
|
3
| 4
<